Sie haben Fragen?
02203 / 9 35 97 – 0

Haus
zum Kauf
53844
 Troisdorf

Wohnen und arbeiten mit Traumblick (PLUS 50m²)

277.400 €
Objekt-Nr.: 59976-4208
9 Zimmer
 |    141 m² Wohnfl.
 |    517 m² Grdstfl.
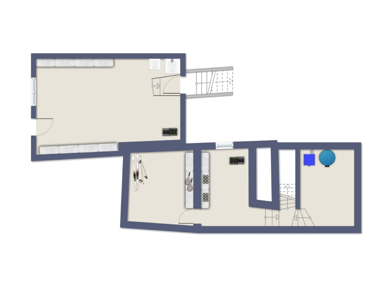
Hier besticht nicht nur die mögliche Flexibilität, sondern auch der traumhafte Blick in die Siegauen bis hin zum Siebengebirge. Die Immobilie wurde ca. 1910 auf dem ca. 517 m² großen Grundstück errichtet. Anfang der 50er Jahre sowie 1968 wurde die Immobilie erweitert. Heute erstreckt sich auf dem Grundstück ein im Vierkant gebautes 2-Familienhaus mit Atrium und großen Lagerflächen. Aufgrund der Aufteilung/Verteilung der beiden Wohneinheiten sowie der großen Lagerflächen bietet sich dieses Objekt optimal zum Wohnen und Arbeiten, beispielsweise für einen Handwerker an. Die Hauptwohnung umfasst ca. 90 m² Wohnfläche, diese erstreckt sich auf 6 Zimmer, 2 Küchen, Flur sowie 2 Badezimmer, eine Dachterrasse im Atrium sowie einen großen Balkon mit traumhaftem Blick in die Natur. In den 50er Jahren wurde die Hauptwohnung um ca. 50 m² erweitert. Diese Fläche ist zu Wohnzwecken ausgebaut, gilt jedoch aktuell als Nutzfläche und ist in den hier angegebenen Wohnflächen nicht inbegriffen. Eine Bauvoranfrage zur Nachtragsgenehmigung dieser Fläche wurde bereits gestellt und positiv beschieden. Eine Nachgenehmigung dieser Fläche ist unproblematisch möglich. Bei der Einliegerwohnung handelt es sich um eine 2,5 Zimmerwohnung mit ca. 55 m². Die angegebene Wohnfläche verteilt sich auf Wohnzimmer, Badezimmer, separates WC, Flur, Balkon, Küche kl. Esszimmer und Schlafzimmer. Die Immobilie ist teilunterkellert (Gewölbekeller ca. 63,41 m²). Eine XXL-Garage mit ca. 59 m² bietet Ihnen Platz für Fahrzeuge oder auch als Lagerraum. Das traumhafte Gartengrundstück, teils hanglagig, reicht bis hinunter zum Mühlenbach und bietet Ihnen einen außergewöhnlichen Grünblick. Die Immobilie ist sanierungsbedürftig.
- 3 Badezimmer - Beheizung über Gastherme (Bj. 2012) - XXL-Garage - teilunterkellert - Balkon - Traumblick
Diese Immobilie liegt in Müllekoven, einem beschaulichen Stadtteil von Troisdorf. Die schönen Fachwerkbauten im Ort prägen den Charakter und haben ihren ganz eigenen Charme. Die Nähe zum Naturschutzgebiet Siegauen und dem Rhein garantieren einen hohen Freizeitwert und macht die Lage zu einem attraktiven Standort. Trotz der ländlichen Lage bietet Müllekoven eine gute Infrastruktur. Verkehrsgünstig im Ballungsraum zwischen Köln und Bonn gelegen, haben Sie Anbindung an die Autobahnen A59 (Richtung Köln/Bonn) und A560 sowie die A3 (Köln/Frankfurt). Für Pendler ideale Voraussetzungen. Die Buslinie 505 verbindet Müllekoven mit Troisdorf, der Schnellbus SB55 bringt Sie nach Bonn. Vor Ort befinden sich die KGS Müllekoven (Grundschule) sowie mehrere Kindertagesstätten, was den Standort auch für Familien interessant macht. Gleich mehrere Spielplätze bieten Ihren Kindern ausgelassene Stunden an der frischen Luft. Direkt im Ort stehen Ihnen zur Versorgung des täglichen Bedarfs ein REWE-Markt, ein Bio-Laden und Bäckereien zur Verfügung. Ärzte und Apotheken finden Sie ebenfalls im Ort. Auch gastronomische Betriebe sind in Müllekoven ansässig. Umfangreicherer Einzelhandel und Einkaufszentren wie die ‚Galerie Troisdorf‘ befinden sich im Stadtzentrum von Troisdorf, das Sie mit dem PKW in etwa 15 Minuten erreichen.
Kaupfpreis: 277.400 €
Provisionspflichtig: Ja
Käuferprovision: 3,57%
Wohnfläche (ca.): 141 m²
Grundstück (ca.): 517 m²
Nutzfläche (ca.): 250 m²
Anzahl Etagen: 2
Zimmer: 9
Zustand: Teil-/Voll-Renovierungsbedürftig
Baujahr: 1910
Heizungsart: Zentralheizung
Befeuerung: Gas
Ausweistyp: Bedarf
Endenergiebedarf: 288,9 kWh/(m²*a)
Heizungsart: Zentralheizung
Ausweis gültig bis: 21.01.2036
Wesentlicher Energieträger: Erdgas leicht
Energieeffizienzklasse: H
Baujahr (Energieausweis): 1910
Ausstelldatum: 2026-01-21
  • A+
  • A
  • B
  • C
  • D
  • E
  • F
  • G
  • H
0255075100125150175200225250
288,90 kWh/(m²*a)
Teilen auf:
Ihre Anfrage
* Pflichtfelder
   Ihre Daten werden verschlüsselt übertragen, vertraulich behandelt und nicht an Dritte weitergegeben.

Ansprechpartner

Sarah Sander
Tel.: 02203/93597-52

Neueste Immobilien

53842
 Troisdorf
1
Bürofl.: 454 m²
51145
 Köln
3,0
1
2
Wohnfl.: 92 m²
Kaufpreis
265.000 €
Sie möchten verkaufen?

Ihr Erfolg: Garantierte Leistungen, bestmöglicher Verkaufspreis und genaue Marktkenntnis in Köln und Umgebung.

Viele unserer Maklerkollegen werden ihnen große … WEITERLESEN »
Der richtige Verkaufspreis. Gerade in Zeiten der …  WEITERLESEN »
Unsere Mitarbeiter übernehmen selbstverständlich… WEITERLESEN »
Der erste Eindruck zählt, sowohl bei den Immobilienfotos… WEITERLESEN »
Mit innovativen Ausstellungsmethoden, wie z.B. der virtuellen… WEITERLESEN »
Verkaufsanfrage
Durch unsere Marktkenntnis vermarkten wir Ihre Immobilie schnell und zum bestmöglichen Preis.
Suchauftrag
Wir unterstützen Sie gerne professionell bei der Suche nach Ihrer Traumimmobilie.
Für Sie da!

Sie haben Fragen rund um diese Homepage? Rufen Sie uns an:
Tel.: 02203 / 9 35 97 – 0